24.44.BEL

RÉNOVATION ET CONSTRUCTION D’UNE MAISON INDIVIDUELLE

 

MOA : PRIVÉE
LOCALITÉ : Piriac-sur-Mer
STATUT : PC encours
SURFACE : 135 m² SDP

MISSION : Architecte – mission complète


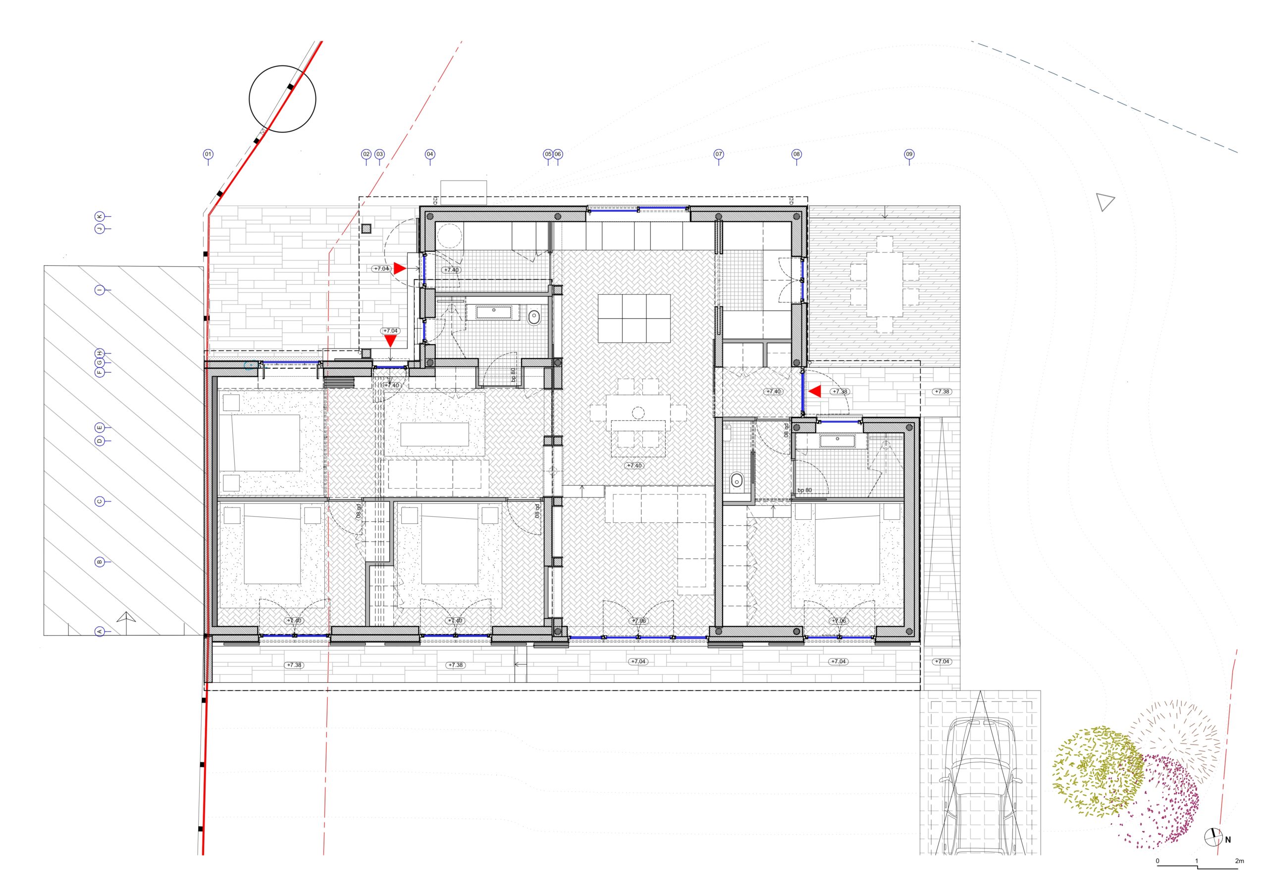
Conçu comme une habitation unifamiliale en prolongement du littoral. La composition du volume est celle de l’architecture intégré dans l’horizontalité de ces paysages maritimes. L’intention s’est portée sur la manière d’adapter le projet au contexte géographique et culturelle (climat, orientation et matériaux).

 

Formé par deux corps, aux proportions différentes, adossés et répartis uniquement à rez-de-chaussée, ce dispositif architectural organise des retraits propices à l’aménagement de terrasses et minimise l’impact visuel de la construction dans sa profondeur. L’architecture suit la distribution intérieure, divisée en deux volumes : le premier, la zone noble, avec les pièces principales et le salon, qui se succèdent le long de la façade sud (front de mer) et qui partagent de la même manière les vues et le jardin ; le second, la zone de service à l’arrière en façade nord (cuisine et pièces de service).

 

Cette disposition dégage deux façades avec chacune leurs terrasses aux usages respectifs : l’une orientée sud, profitant de l’ensoleillement, ouverte vers l’horizon maritime, espace d’observation protégé par un avant toit, l’autre au nord, protégée des vents dominants, séquence d’entrée, de restauration et de service. Cette double orientation garantie une ventilation traversante.

 

Perspective : LaCimaise