80 LOGEMENTS ACCESSION ET SOCIAUX & COMMERCES
MOA : PRIVÉE – EMERIGE
LOCALITÉ : Paris 13ème
STATUT : Réalisé – livré en 2021 – lauréat concours en 2016
SURFACE : 8 680 m2
–
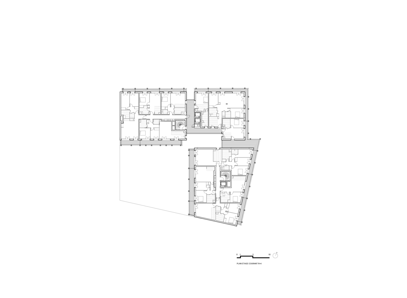
Le projet se déploie en quatre corps de bâtiments accessibles depuis la rue de Tolbiac. Trois plots reliés par des coursives organisent le front bâti et se retrouvent autour des espaces de rencontre en forme de nids dessinés au cœur de la propriété.
Sans ignorer les dimensions fonctionnelles de l’architecture, le projet Tolbiac tente d’emmener l’habitat vers les multiples formes d’habiter, en explorant l’expressivité des matériaux, le potentiel des espaces communs, les ouvertures sur le paysage et l’agencement des typologies. La dualité du bois et du béton guide la conception du projet.
Plan Climat Ville de Paris – RT2012
Photographies : Luc Boegly